Eggenspieler Architekten
22. März 2018

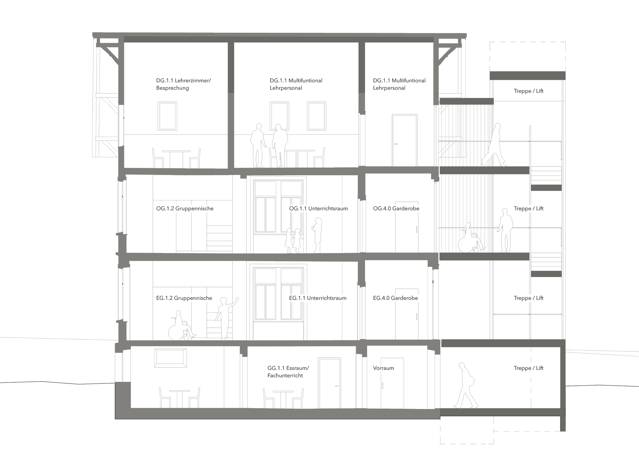
122_hagendorn_längsschnitt

Heilpädagogisches Zentrum, Hagendorn, Eggenspieler Architekten AG

Heilpädagogisches Zentrum, Hagendorn, Eggenspieler Architekten AG

22. März 2018