Zentrumsentwicklung Hünenberg
Hünenberg / ZG
2015
Der Projektvorschlag strebt neben attraktivem neuen Wohnraum und vielfältigen Einkaufsmöglichkeiten eine erkennbare, qualitätsvolle Zentrumsentwicklung von Hünenberg an. Der Projektvorschlag integriert die Bebauungen westlich der Chamerstrasse, respektiert das Umfeld der Kirche und bewirkt eine Belebung des bestehenden Dorfplatzes.
Die dabei entstehende Ost-West Achse spannt einen Sichtkontakt über die Chamerstrasse zur Kirche auf und lässt das naheliegende Dorfgässli-Quartier näher zum heutigen Gemeindeplatz rücken. Strassenraum und öffentlichen Plätze verbinden sich fliessend und schaffen eine hohe Aufenthaltsqualität für jedes Alter. Ein Café lädt am heutigen Marktplatz zum Verweilen ein. Das Rückgrat dieser Achse bilden die Kirche und die am Waldrand situierten Alterswohnungen.
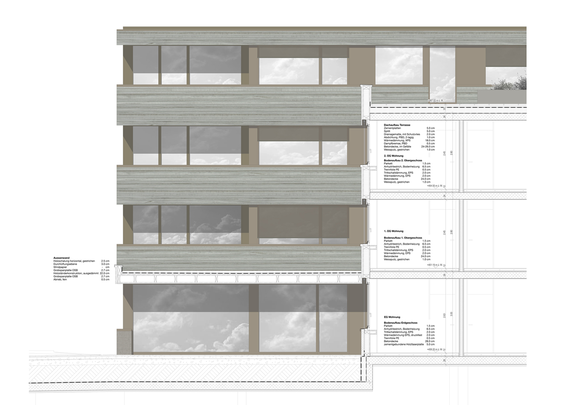
In Anlehnung an die umliegenden Gebäude wird die Fassade des neuen Zentrumsbau als weiss geschlämmten Backsteinfassade vorgeschlagen. Die Bürogeschosse lassen flexible Nutzungen offen, die Innenräume der Wohnungen sind hingegen klar strukturiert.
Die Fassaden der Wohnbauten entlang des Waldrandes unterscheiden sich von jenen des Zentrumsbaus am Dorfplatz. Die horizontal gegliederten Fassaden binden die zwei Wohngebäude optisch zu einer Einheit zusammen. Durchlaufende Fensterbänder ermöglichen flexible Grundrisstypologien mit hoher Wohnqualität. Loggien an den Gebäudeecken ermöglichen interessante Weitblicke in das neue Zentrumsquartier.
| Projekt: | Neugestaltung Dorfzentrum Hünenberg mit altersgerechten Wohungen und Spitex, Verwaltung, Grossverteiler, Gastronomie, Dienstleistung, Dorfplatzgestaltung |
| Bauherrschaft: | Jego AG, Hünenberg |
| Auftragsart: | Wettbewerb auf Einladung |
| Planung: | 2015 |
| Zusammenarbeit: | AmreinHerzig Achitekten, Baar |






