Eggenspieler Architekten

Wohnhäuser am Rebberg

Wettingen / AG

2015 - 2020

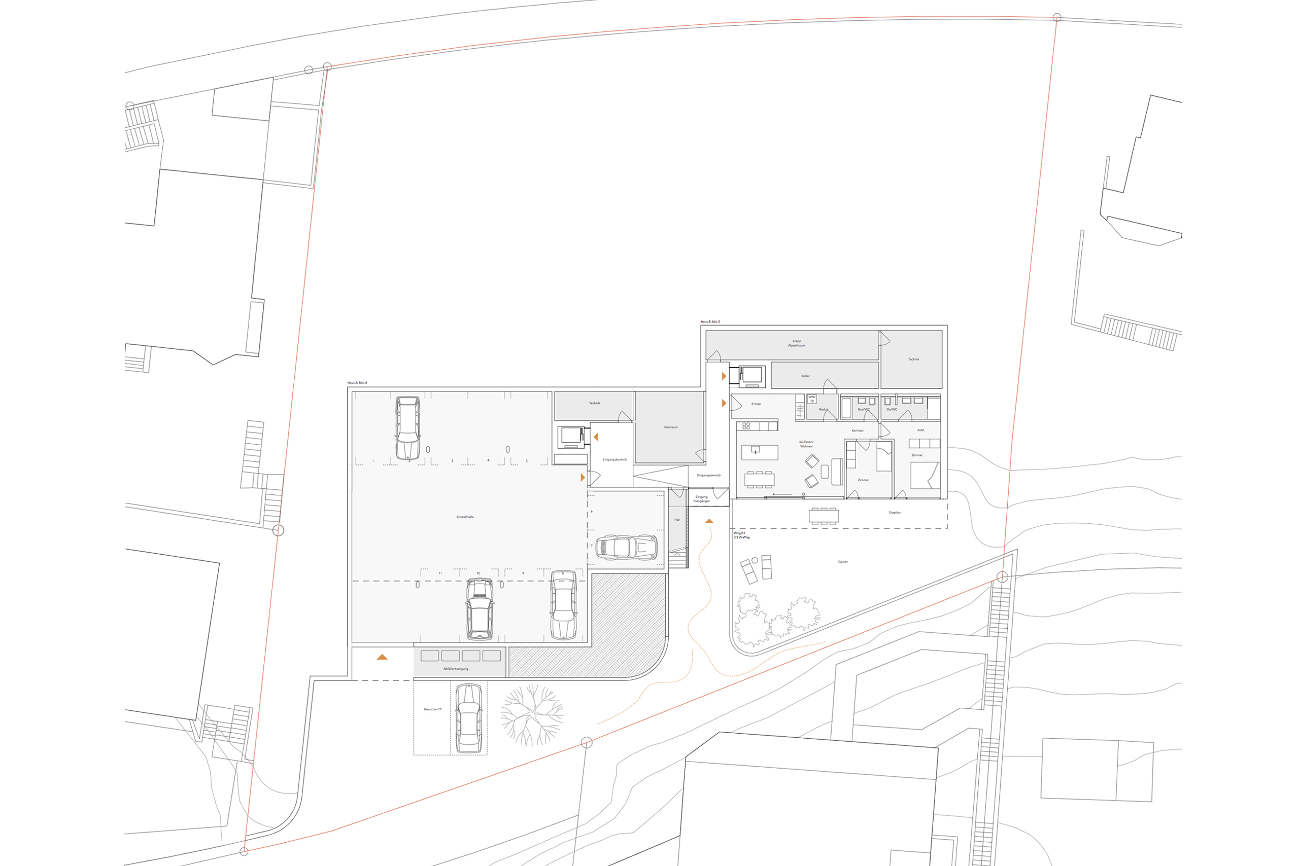
Die Wohnüberbauung ussere Scharte liegt an einem ehemaligen Rebberghang am Südfuss der Lägern. Die steile Topografie führt zu einer Stapelung von vier sorgfältig in den Hang eingepassten Gebäudekörpern. Der kleine Fussabdruck dieser Solitärbauten ermöglichen einen durchgehenden Grüngürtel mit der gewünschten Privatsphäre.

Die  berg- und talseitig Erschliessung schafft für das Wohnquartier und die Nachbarschaft ausgewogene Verkehrsströme. Über eine zentral gelegene, der steilen Hanglinie folgenden Kaskadentreppe werden die einzelnen Wohneinheiten erschlossen. Diese vertikale Fusswegverbindung verbindet die Wohnhäuser direkt mit der Stadt Wettingen und dem nahe gelegenem Lägernwald.

Die klare Formensprache der Wohnhäuser wird durch eine hochwertige Sichtbetonfassade materialisiert. Der horizontalen Stapelung entsprechend sind die Deckenstirnen der einzelnen Geschosse in der Fassade ablesbar. Wandflächen zwischen den tragenden Betonscheiben sind als strukturelle Fensteröffnungen definiert und mit einem Holzelement ausgestaltet.

Es entsteht ein Wechselspiel zwischen tragenden Betonscheiben und der weich anmutenden vertikalen Holzstruktur.

Die jeweiligen Untergeschosse sind zurückversetzt, was die Baukörper leichter in Erscheinung treten lässt. Die Ausrichtung der Hauptfassaden nach Süden sorgt für viel Tageslicht in den Wohn- und Schlafräumen und ermöglichen einen uneingeschränkten Blick in das ferne Limmattal.

Projekt:

vier Wohnhäuser mit individuellen Wohneinheiten

Bauherrschaft:

Wetter Immobilien AG, Baden

Auftragsart:

Studienauftrag auf Einladung

Planung und Realisierung:

2015 - 2020

Top