Ersatzneubau Gefängnis Bezirksanlage Zürich
Zürich / ZH
2023
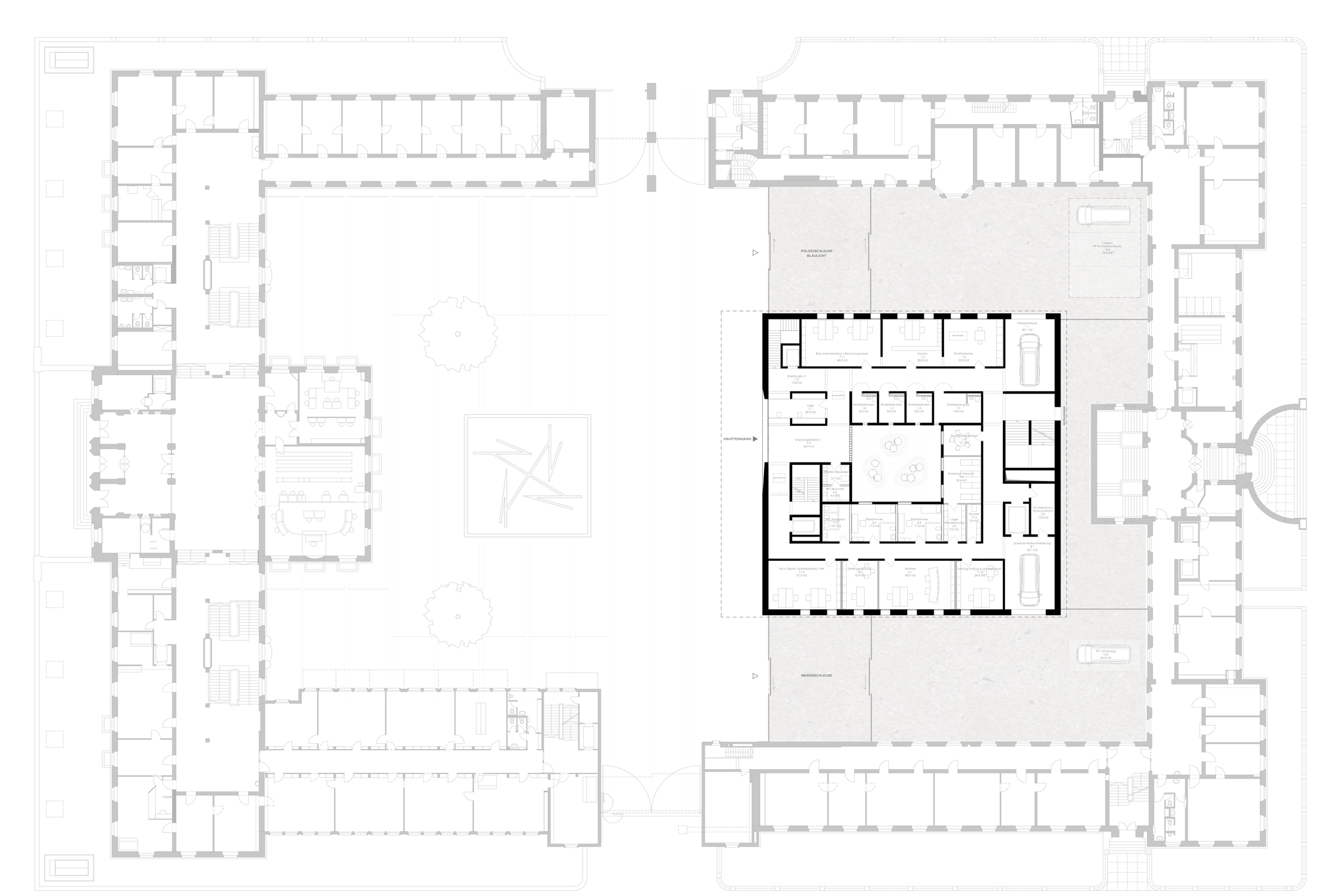
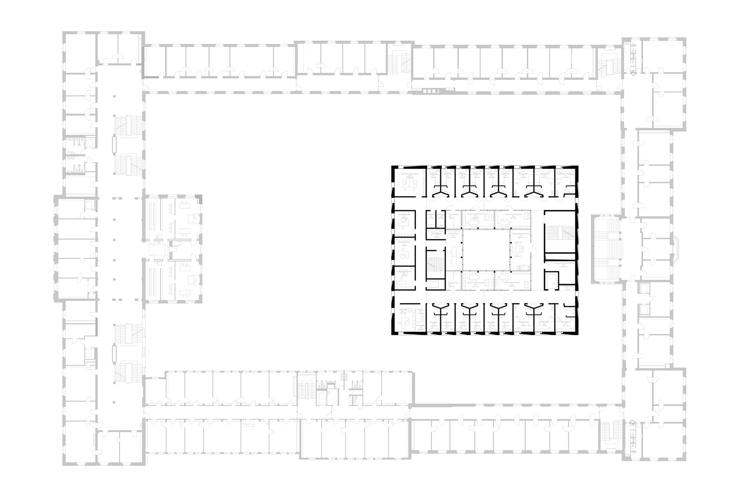
Der Standort des Gefängnisses Zürich ist im Bezirksgebäude, dem grössten Gericht des Kantons, integriert und bietet einen direkten Zugang zur Staatsanwaltschaft. In einem Ersatzneubau am selben Standort sollen zukünftig 90 Haftplätze untergebracht werden. Der Gefängnisneubau soll sich räumlich und funktional optimal in die bestehende Anlage integrieren.
Der Entwurf geht von einem Atriumgebäude als freistehender Solitär im Innenhof des historisch bedeutsamen Blockrandes aus. Dadurch werden die Fassaden des historischen Blockrandgebäudes nicht tangiert.
Alt- und Neubau treten respektvoll in einen spannungsvollen räumlichen Dialog, ohne sich gegenseitig einzuschränken. Die funktional gegliederten Zwischenräume schaffen einerseits optimale Belichtungssituationen für den historischen Blockrand und den Neubau und anderseits erscheint die unmittelbare Nähe der gegenüberliegenden Fassaden verträglicher als im heutigen Zustand.
Die bedeutsame Blickachse der Kanzeistrasse bleibt dabei erhalten. Der freistehende Neubau bildet den nordöstichen Hofabschluss und ist mit seinen fünf Vollgeschossen vom Stadtraum nicht sichtbar. Das Dachgeschoss ordnet sich typologisch und in Bezug auf dessen Höhe in die benachbarte Dachlandschaft ein.
| Projekt | Ersatzneubau Gefängnis Bezirksanlage Zürich |
| Bauherrschaft | Baudirektion Kanton Zürich |
| Auftragsart | Wettbewerb mit Präqualifikation |
| Planung | 2023 |
| Zusammenarbeit | architecture & aménagement s.a., Luxembourg und |
